Schiermonnikoog
Badweg 53R 16, 9166 NE

Vraagprijs

€ 565.000 k.k.

Woonopp.

140 m2

Luxe en riant appartement (recreatie) met drie slaapkamers en veel buitenruimte. Wanneer wij het mooiste appartement van het eiland zouden mogen aanwijzen dan is dit een kanshebber. Wat een ruimte en wat een licht appartement ook. Bij binnenkomst valt vanuit de living gelijk het fenomenale uitzicht over de Badweg en omliggende natuur op. Dit is op en top ontspannen!

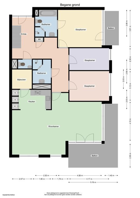
Met de lift danwel met de trap gaat u naar de tweede etage waar u in de noordoostelijke hoek van het gebouw dit bijzondere appartement vindt. De entree is ruim en direct valt de vaste trap naar het dakterras op. Naast de twee balkons die er zijn geeft het dakterras extra uitzicht en de mogelijkheid om gedurende de dag van de zon te genieten als u dat wilt. Vanuit de hal in het woongedeelte zijn de drie slaapkamers, de eerste badkamer, de wc en de living te bereiken. De tweede badkamer is toegankelijk vanuit de master bedroom.
De woonkamer is riant en staat in open verbinding met de keuken. Achter de keuken bevindt zich de bijkeuken en wat erg goed gedaan is dat door middel van een lichttube daglicht in de keuken wordt gebracht. Daglicht is er overigens verder ruim voldoende dankzij de fraaie raampartij in de hoek van de woonkamer.
Er zijn zoals geschreven twee balkons; een ruim balkon grenzend aan de woonkamer en een tweede balkon grenzend aan de grootste slaapkamer.

Het complex Vitamaris beschikt over diverse faciliteiten waar u gebruik van kunt maken, denkt u hierbij onder meer aan het binnenzwembad, sauna, zonnebank en een tafeltennistafel. Het complex wordt professioneel beheerd en er is een receptie aanwezig.

Het complex waar dit appartement onderdeel van uitmaakt kent een actieve Vereniging van Eigenaars (VvE). U betaalt als lid van deze VvE per maand een bijdrage van € 1.486,18 inclusief btw, voorschot nutsvoorzieningen en Wifi.
Verhuur van het appartement in complex Vitamaris is mogelijk en verloopt dan via Landal Greenparks. Aan Landal Greenparks betaalt u in het geval van verhuur maandelijks een vaste bijdrage en draagt u een deel van de huurinkomsten af.

Mooi bezit op een prachtig eiland!

Bijzonderheden:
- Inclusief inboedel m.u.v. enkele schilderijen.
- Twee balkons en een dakterras dat via een vaste trap toegankelijk is.
- Twee badkamers waarvan één met bubbelbad.
- Berging aanwezig.
- Huisdieren niet toegestaan.

Lees meer...

Kenmerken

Algemeen

 

Vraagprijs
€ 565.000 kosten koper
Status
Beschikbaar
Aanvaarding
In overleg
Bijdrage VvE
1486.18 ja

Bouw

 

Soort appartement
Penthouse
Bouwvorm
Bestaande bouw
Bouwjaar
2007
Bijzonderheden
Gemeubileerd, toegankelijk voor ouderen, toegankelijk voor gehandicapten
Soort dak
Samengesteld dak bedekt met

Oppervlakten en inhoud

 

Woonoppervlakte
140 m2
Gebouwgebonden buitenruimte
34 m2
Externe bergruimte
4 m2
Inhoud
450 m3

Indeling

 

Aantal kamers
4 kamers (3 slaapkamers)
Aantal woonlagen
1
Aantal woonlagen
1
Gelegen op
3e woonlaag
Voorzieningen
Zwembad, sauna, lift

Energie

 

Energielabel
B
Isolatie
Volledig geïsoleerd
Warm water
C.v.-ketel

Buitenruimte

 

Ligging
Aan rustige weg, vrij uitzicht, open ligging
Tuin
Geen tuin

Bergruimte

 

Schuur/berging
Inpandig

Parkeergelegenheid

 

Soort garage
Geen garage

Plattegrond

Streetview

Uitzonderlijk Wonen

Dát is Verver Jet Winters Makelaars

Contact

Verver Jet Winters Makelaars
Rijksstraatweg 26-A
9752 AE Haren

info@ververjetwinters.nl
T 050 534 0515

KvK 04069449

Uitzonderlijk op de hoogte blijven?

Schrijf u dan in voor onze nieuwsbrief en blijf op de hoogte van nieuws en achtergronden van de woningmarkt.

Volg ons op sociale media

Volg ons op facebookFacebook
Volg ons op InstagramInstagram
Volg ons op LinkedinLinkedIn
Logo Nederlandse Vereniging van Makelaars Logo nwwi Logo vastgoedcert