Onnen
Dorpsweg 35e, 9755 PA

Vraagprijs

€ 465.000 k.k.

Woonopp.

145 m2

Royaal en modern hoekappartement gelegen op de eerste verdieping

De Dorpsweg 35e maakt deel uit van een kleinschalig appartementencomplex bestaande uit acht appartementen verdeeld over twee woonlagen. Het complex is gebouwd in 2007 en de appartementen zijn o.a. voorzien van een videofooninstallatie, mechanische ventilatie, vloer-, muur- en dakisolatie, dubbel glas en een cv-ketel. Het energielabel betreft een A. Ieder appartement heeft een eigen berging voorzien van elektra. Auto’s kunnen worden geparkeerd naast het complex. De Vereniging van Eigenaars is actief en de maandelijkse bijdrage bedraagt € 189, =.

Het rustieke dorp Onnen is gelegen tussen Haren en Zuidlaren, een omgeving die garant staat voor landelijk wonen met veel nabijgelegen natuurgebieden waar naar hartenlust kan worden gewandeld of gefietst. Voorzieningen zoals winkels zijn op korte afstand gelegen in het dorp Haren waar een uitstekende fietsverbinding mee is.

De indeling van het appartement is als volgt: Vanuit de afgesloten gemeenschappelijke hal is het appartement bereikbaar middels het trappenhuis of de lift. De hal met trapopgang biedt toegang tot de ruime woonkamer met open keuken. De woonkamer biedt een fraai uitzicht over de Dorpsstraat. De keuken heeft een moderne uitstraling en is voorzien van diverse inbouwapparatuur, te weten: koelvries combinatie, vaatwasser, oven, wijnklimaatkast, 5 pits gaskookplaat en afzuigkap. Het ruime balkon is middels een schuifpui toegankelijk. Voorts vinden we op deze verdieping nog een meterkast en een badkamer voorzien van toilet, douche en wastafelmeubel.

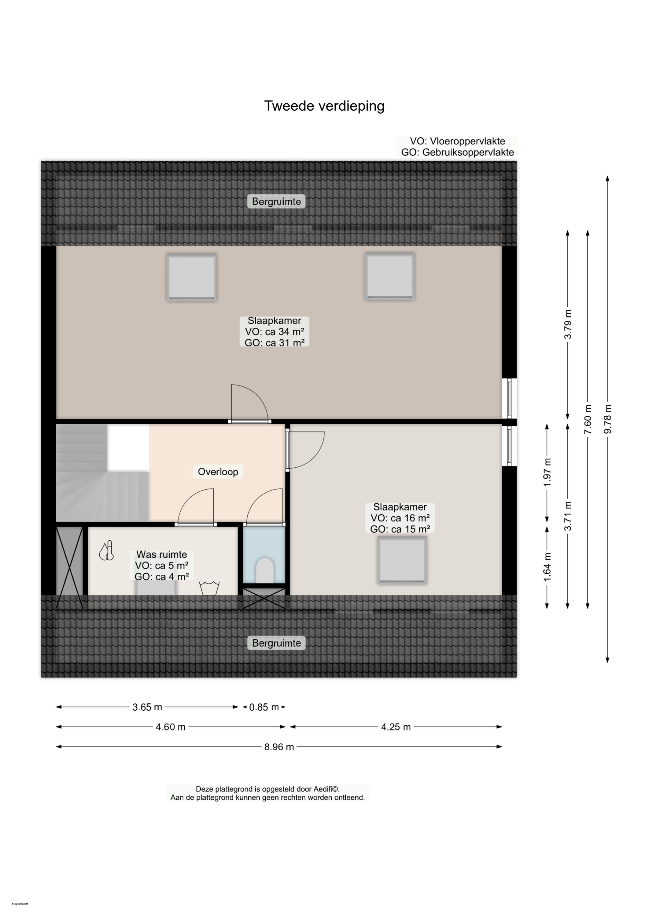
Op de verdieping van dit appartement vinden we een overloop, 2 ruime slaapkamers, een wasruimte en een separaat toilet. De zolderverdieping is thans in gebruik als berging maar deze ruimte zou ook uitstekend dienst kunnen doen als derde slaapkamer. Door de geplaatste dakramen is er voldoende daglicht toetreding.

Kortom, zorgeloos wonen in een appartement midden in een bosrijke omgeving.

Lees meer...

Kenmerken

Algemeen

 

Vraagprijs
€ 465.000 kosten koper
Status
Recent verkocht
Aanvaarding
In overleg
Bijdrage VvE
189.0 ja

Bouw

 

Soort appartement
Galerijflat
Bouwvorm
Bestaande bouw
Bouwjaar
2007

Oppervlakten en inhoud

 

Woonoppervlakte
145 m2
Overige inpandige ruimte
11 m2
Gebouwgebonden buitenruimte
8 m2
Externe bergruimte
7 m2
Inhoud
570 m3

Indeling

 

Aantal kamers
3 kamers (2 slaapkamers)
Aantal woonlagen
3
Aantal woonlagen
3
Gelegen op
1e woonlaag
Voorzieningen
Mechanische ventilatie, tv kabel, lift

Energie

 

Energielabel
A
Isolatie
Dakisolatie, muurisolatie, vloerisolatie
Warm water
C.v.-ketel

Buitenruimte

 

Ligging
In woonwijk, in bosrijke omgeving
Tuin
Geen tuin

Bergruimte

 

Schuur/berging
Vrijstaand hout

Parkeergelegenheid

 

Soort garage
Parkeerplaats, geen garage

Plattegrond

Streetview

Uitzonderlijk Wonen

Dát is Verver Jet Winters Makelaars

Contact

Verver Jet Winters Makelaars
Rijksstraatweg 26-A
9752 AE Haren

info@ververjetwinters.nl
T 050 534 0515

KvK 04069449

Uitzonderlijk op de hoogte blijven?

Schrijf u dan in voor onze nieuwsbrief en blijf op de hoogte van nieuws en achtergronden van de woningmarkt.

Volg ons op sociale media

Volg ons op facebookFacebook
Volg ons op InstagramInstagram
Volg ons op LinkedinLinkedIn
Logo Nederlandse Vereniging van Makelaars Logo nwwi Logo vastgoedcert