Groningen
Helper Brink 61184, 9722 EK

Vraagprijs

€ 259.000 k.k.

Woonopp.

96 m2

Fantastisch en zorgeloos wonen met weids uitzicht in Groningen-Zuid

In het geliefde Groningen-Zuid, in de groene en karaktervolle wijk Helpman, bevindt zich dit royale en comfortabele dubbele appartement van ca. 96 m² met twee zonnige balkons op het zuidwesten én een eigen garage. Gelegen op een hogere verdieping (10) van de markante Groenesteinflat geniet u hier dagelijks van een prachtig uitzicht, veel lichtinval en een bijzonder prettige woonomgeving.

Het appartement maakt deel uit van de bekende Groenestein serviceflat, een verzorgd en goed onderhouden complex dat zich richt op bewoners vanaf 55 jaar. Het complex staat bekend om het comfortabele woonconcept waarbij zelfstandigheid en gemak centraal staan. Bewoners kunnen gebruikmaken van diverse faciliteiten, waaronder een receptieruimte, een recreatiezaal, logeerkamers voor gasten en een gezamenlijk terras. Voor wie dat prettig vindt worden regelmatig activiteiten georganiseerd.

Daarnaast ligt direct naast het complex zorgorganisatie De Brink (ZINN), waardoor het mogelijk is om, indien gewenst, zorg en ondersteuning in te kopen. Dit maakt de woonomgeving niet alleen comfortabel, maar ook toekomstbestendig.
De ligging is uitstekend. Op korte afstand vindt u het winkelcentrum van Helpman met een gevarieerd aanbod aan winkels, speciaalzaken en horeca. Ook het groen van het nabijgelegen park en diverse wandelmogelijkheden bevinden zich op loopafstand. Het openbaar vervoer is goed bereikbaar en met de fiets bent u binnen enkele minuten in het bruisende centrum van Groningen.

Indeling

Centrale entree met video-intercominstallatie, verzorgd trappenhuis en liftinstallatie naar de 10e verdieping.

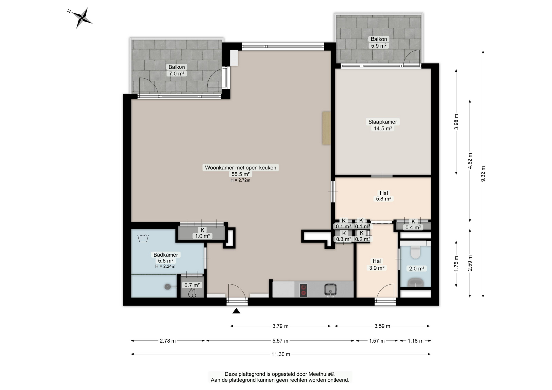
Entree van het appartement. Binnenkomst in een ruime hal die toegang geeft tot de royale en bijzonder lichte woonkamer met open keuken (circa 55 m²). De moderne open keuken is uitgevoerd in een lichte kleurstelling en uitgerust met diverse inbouwapparatuur, waaronder een inductiekookplaat met afzuigkap, vaatwasser, koelkast en een combi oven-magnetron. Dankzij de grote raampartijen en de hoge ligging geniet u hier van een fraai uitzicht en een prettige lichtinval. Vanuit de woonkamer is er toegang tot het zonnige balkon op het zuidwesten, waar u heerlijk van de middag- en avondzon kunt genieten. Via een tussenhal bereikt u de slaapkamer. Deze kamer heeft eveneens toegang tot een tweede balkon, waardoor u ook hier een fijne buitenruimte tot uw beschikking heeft.

Verder beschikt het appartement over:
- een praktische ruimte met witgoedaansluitingen
- een separaat toilet met fonteintje
- een nette badkamer voorzien van inloopdouche en wastafel

In de onderbouw van het complex bevindt zich een gezamenlijke fietsenberging en als extra pluspunt kunnen we de eigen garage benoemen.

Bijzonderheden

Woonoppervlakte ca. 96 m²
Twee balkons op het zonnige zuidwesten
Prachtig vrij uitzicht vanaf de 10e verdieping
Dubbele beglazing
Rolstoelvriendelijk complex
Eigen verwarmde garage
Serviceflat met diverse voorzieningen en activiteiten
Actieve Vereniging van Eigenaars

De maandelijkse bijdrage aan de VvE bedraagt € 653,18 en omvat onder andere:

stookkosten en waterverbruik
onderhoud van het gebouw en de lift
huur van de boiler
opstalverzekering
schoonmaak van de algemene ruimtes
kabel-tv
afvalophaaldienst

Aanvaarding in overleg, eventueel op korte termijn mogelijk.

Lees meer...

Kenmerken

Algemeen

 

Vraagprijs
€ 259.000 kosten koper
Status
Recent verkocht
Aanvaarding
In overleg
Bijdrage VvE
653.18 ja

Bouw

 

Soort appartement
Portiekflat
Bouwvorm
Bestaande bouw
Bouwjaar
1971

Oppervlakten en inhoud

 

Woonoppervlakte
96 m2
Gebouwgebonden buitenruimte
13 m2
Externe bergruimte
20 m2
Inhoud
300 m3

Indeling

 

Aantal kamers
2 kamers (1 slaapkamers)
Aantal woonlagen
1
Aantal woonlagen
1
Gelegen op
10e woonlaag

Energie

 

Energielabel
D
Isolatie
Muurisolatie, dubbel glas
Warm water
Elektrische boiler huur

Buitenruimte

 

Ligging
Aan park, in woonwijk
Tuin
Geen tuin

Parkeergelegenheid

 

Soort garage
Aangebouwd steen

Plattegrond

Streetview

Uitzonderlijk Wonen

Dát is Verver Jet Winters Makelaars

Contact

Verver Jet Winters Makelaars
Rijksstraatweg 26-A
9752 AE Haren

info@ververjetwinters.nl
T 050 534 0515

KvK 04069449

Uitzonderlijk op de hoogte blijven?

Schrijf u dan in voor onze nieuwsbrief en blijf op de hoogte van nieuws en achtergronden van de woningmarkt.

Volg ons op sociale media

Volg ons op facebookFacebook
Volg ons op InstagramInstagram
Volg ons op LinkedinLinkedIn
Logo Nederlandse Vereniging van Makelaars Logo nwwi Logo vastgoedcert