Eext
Hoofdstraat 35, 9463 PB

Vraagprijs

€ 895.000 k.k.

Woonopp.

248 m2

Perceelopp.

7.044 m2

Een prettige woonboerderij met prachtige tuin van ruim 7000m²!

Deze in het geliefde Drentse dorp Eext gelegen woonboerderij is de afgelopen decennia met veel liefde en zorg bewoond. Het onderhoud is door de jaren heen goed bijgehouden en er heerst een prettige sfeer.
Eext is een prachtig karakteristiek Drents brinkdorp dat goed ontsloten is. Met de auto bereikt u snel de N34 en zo zijn Emmen, Assen en Groningen bereikbaar. Het groene dorp kent mooie brinken en is omringd door bekroonde natuur van het stroomdal van de Drentsche Aa. De Gieter Staatsbossen bevinden zich in de nabijheid alwaar u kunt genieten van de prachtige natuur. In Eext is een winkel voor de dagelijkse boodschappen, een openbare basisschool, een rijk verenigingsleven en er zijn diverse restaurants. Voor vervolg onderwijs gaat u naar het nabijgelegen Gieten.

De woonboerderij is uiterst royaal maar voelt nergens te groot. Het geheel kan volledig gelijkvloers worden bewoond. Er bevinden zich vier slaapvertrekken, een charmante woonkamer, woonkeuken en twee badkamers op de begane grond.
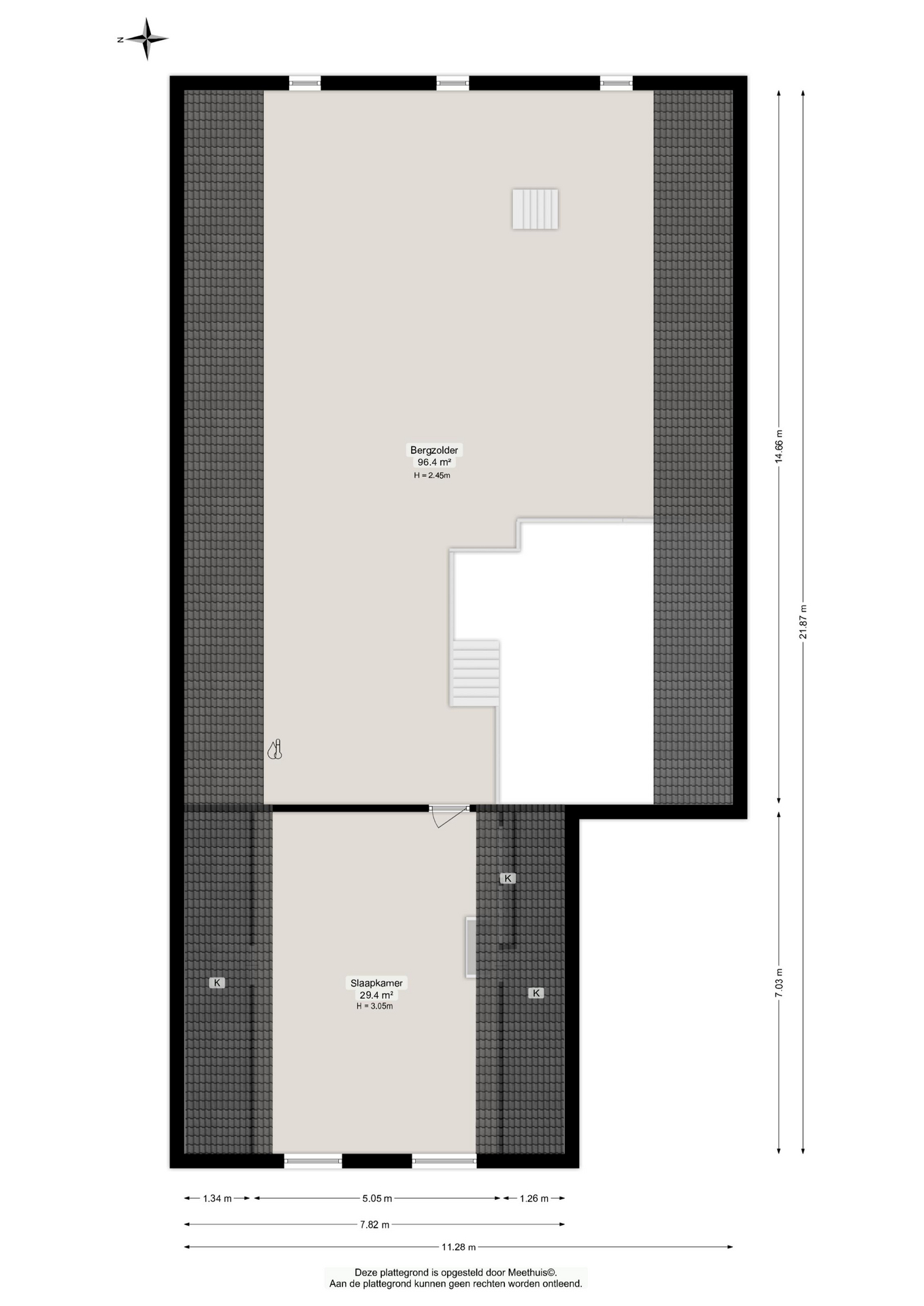
De verdieping biedt nog vele mogelijkheden. Via een vaste trap bereikt u op de etage een prachtige logeer/hobbykamer. De rest van deze verdieping is nu zolder en opslag maar kan eenvoudig worden verbouwd. De kap en het dak zijn in het verleden degelijk vernieuwd.

Indeling: Via de zijentree bereikt u de centrale en royale hal met toilet en garderobehoek. De sfeervolle woonkamer kijkt uit over de tuin. Deze gezellige ruimte heeft een sfeer verhogende houtkachel, fraaie oude gebinten en schuifpui naar de tuin. De royale woonkeuken grenst meteen aan deze ruimte en is netjes maar eenvoudig. Ook hier staat u direct in contact met de tuin.
De centrale hal op de begane grond verbindt alle vertrekken. Aan de voorzijde van het huis zijn twee riante slaapvertrekken. Via de gang bereikt u eveneens de twee andere slaapkamers en de naast de keuken gelegen bijkeuken. Tevens zijn er op de begane grond twee nette badkamers. Eén is uitgevoerd met een wastafel en een inloopdouche. De grote badkamer is voorzien van een ligbad, separate douche en wastafel. Separaat bevindt zich ook een tweede toiletruimte.
De inpandige garage/schuur is ook ruim bemeten en vanaf hier gaat er een vaste trap naar de eerste etage alwaar zich een heerlijke gastenkamer dan wel hobbyruimte bevindt. Charmant, sfeervol en gezellig! De etage biedt nog vele mogelijkheden tot uitbreiding. Extra kamers of royale hobbyruimte; alles is mogelijk! Er is een vaste trap naar de zolderruimte.

Door de jaren heen is de boerderij constructief goed onderhouden. Zo is in het verleden de kap vernieuwd, de kozijnen vervangen en hoofdzakelijk dubbele beglazing geplaatst. De kap is geïsoleerd en ook de verdiepingsvloer is voorzien van isolatie. Het energielabel is C. Het geheel wordt verwarmd door twee Atag combiketels en er is een houtkachel voor de sfeer in de living.

Voor een goede indruk van de prettige ruime indeling bevelen wij de plattegronden aan, voor een winterse impressie kunt u de video bekijken.

Bijzonderheden:
- Royale degelijke woonboerderij;
- In de afgelopen decennia goed verbouwd;
- Label C;
- De woonboerderij is volledig gelijkvloers te bewonen;
- Prachtige tuin van 7044 m²;
- Gelegen in geliefd Drents brinkdorp;
- Assen, Groningen en Emmen bereikbaar in circa 25 minuten.

Lees meer...

Kenmerken

Algemeen

 

Vraagprijs
€ 895.000 kosten koper
Status
Beschikbaar
Aanvaarding
In overleg

Bouw

 

Soort woning
Woonboerderij
Bouwvorm
Bestaande bouw
Bouwjaar
1914

Oppervlakten en inhoud

 

Woonoppervlakte
248 m2
Overige inpandige ruimte
169 m2
Externe bergruimte
28 m2
Perceeloppervlakte
7.044 m2
Inhoud
1.484 m3

Indeling

 

Aantal kamers
6 kamers (2 slaapkamers)
Aantal woonlagen
3

Energie

 

Energielabel
C
Warm water
C.v.-ketel

Buitenruimte

 

Ligging
Aan rustige weg, beschutte ligging
Tuin
Tuin rondom

Bergruimte

 

Schuur/berging
Vrijstaand hout

Parkeergelegenheid

 

Soort garage
Inpandig

Plattegrond

Streetview

Uitzonderlijk Wonen

Dát is Verver Jet Winters Makelaars

Contact

Verver Jet Winters Makelaars
Rijksstraatweg 26-A
9752 AE Haren

info@ververjetwinters.nl
T 050 534 0515

KvK 04069449

Uitzonderlijk op de hoogte blijven?

Schrijf u dan in voor onze nieuwsbrief en blijf op de hoogte van nieuws en achtergronden van de woningmarkt.

Volg ons op sociale media

Volg ons op facebookFacebook
Volg ons op InstagramInstagram
Volg ons op LinkedinLinkedIn
Logo Nederlandse Vereniging van Makelaars Logo nwwi Logo vastgoedcert